127平米三居室的房子怎么装修比较好呢?一位业主装修出的 127平米的现代三居室,美观大气,让人争相模仿。业主介绍,本套面积127平米的现代三居室全包装修费用只花了10万,究竟是怎么做到的呢?
	设计理念:本案定义为现代古典风格,本案是为老人设计的,整体增加了储物空间,可以让老人很好的存放充满回忆的老物件,另外的一些小设计也是针对老人的喜好专门设计的,为老人提供了一个舒适温馨的居住环境。
	客厅也叫起居室,是主人与客人会面的地方,也是房子的门面。客厅的摆设、颜色都能反映主人的性格、特点、眼光、个性等。客厅宜用浅色,让客人有耳目一新的感觉。
	 
 
	客厅整个空间,色彩表达素雅,以白色和浅灰色为基调,地面选用胡桃木色鱼骨拼地板,饱满沉稳,有很好的居住舒适感。
	卧室应该是一个安静的、温馨的场所,从选材、色彩、室内灯光布局到室内物件的摆设都要经过精心设计。
	 
 
	这是爷爷奶奶的房间,用色则是偏向宁静素雅,以白为主,以净为辅,白色皮革与原木色结合的床架,简约素雅的床饰,藏蓝色花纹窗帘,沉稳而端庄,更加适合老人。
	 
 
	主卧是给父母的房间,用色整体明亮鲜艳一些,床背与窗帘选用了橙色与鹅黄的搭配,L形的大飘窗,让阳光透过唯美“珍珠蕾丝提花纱帘”充沛得照入屋内,重塑了内心和灵魂的美好。
	随着时代的变化,人们对卫生间设计有着极高的需求,卫生间设计规范也成为了一大重点。现在的卫生间设计讲究精益求精,空间改造更加完善、视觉上更加美观。下面这款卫生间设计案例,希望会对你们有所帮助!
	 
 
	干区洗漱柜,材质跟餐边吊柜统一,柜面选用了现代感十足的黑色氟碳烤漆方形组合把手,柜体下方抬高,方便放置一些盆类用品。
	用餐环境跟身体健康有这千丝万缕的关系,如果餐厅装修的不好,直接影响我们的食欲和进食效果。餐厅的空间一定要是相对独立的一个部分,如果条件允许的话,最好是能单独的开辟出一间餐厅来,有些户型较小,无法达到一间独立的餐厅,出于便捷的考虑,也可以将它与厨房连接。
	 
 
	打开入户门,就是我们的餐厅空间,与客厅贯通,保留了原有的层高,灯具均采用明装形式,复古石膏造型叠级与客厅造型整体设计,形成一体
	厨房是每个吃货最喜欢的地方,然而对于多数家庭而言,厨房的面积并不是很大;因此,厨房在装修的时候合理分布各个功能、合理的设置收纳储物空间、并把现代化的电器也植入到空间里就显得尤其的重要了!
	 
 
	厨房的柜子,做了分色设计,下柜选用深色木纹饰面板,纹理古朴自然,点缀了锤纹金色把手,吊柜选用白色亮面亚克力材质柜门,黑色把手与门框镶嵌一体,更加便于平日的清洁打理。
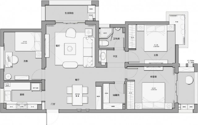
	以下就是本套华远景瑞海蓝城小区127平米三居室房子的户型图。
	 
 
	拓展厨房使用面积,用无地轨移门形式,方便使用,利用隔墙增加了入户鞋柜存储空间。
	关于装修的相关知识,中山帮忙装修网公司小编就为大家介绍到这里了,全包方式装修127平米的房子只用10万,真的算是太便宜了,大家在装修的时候也一定要在价格上算计到位。不要花了冤枉钱。
	装修预算不够?快来申请装修贷款!月息低至2.5厘。帮忙装修网为解决业主的装修资金难题,特与银行合作推出“装修贷”,一站轻松办理:18824725983 吴先生 
	 长按二维码关注"帮忙装修网",了解更多装修资讯↓↓↓
